Situationsplan
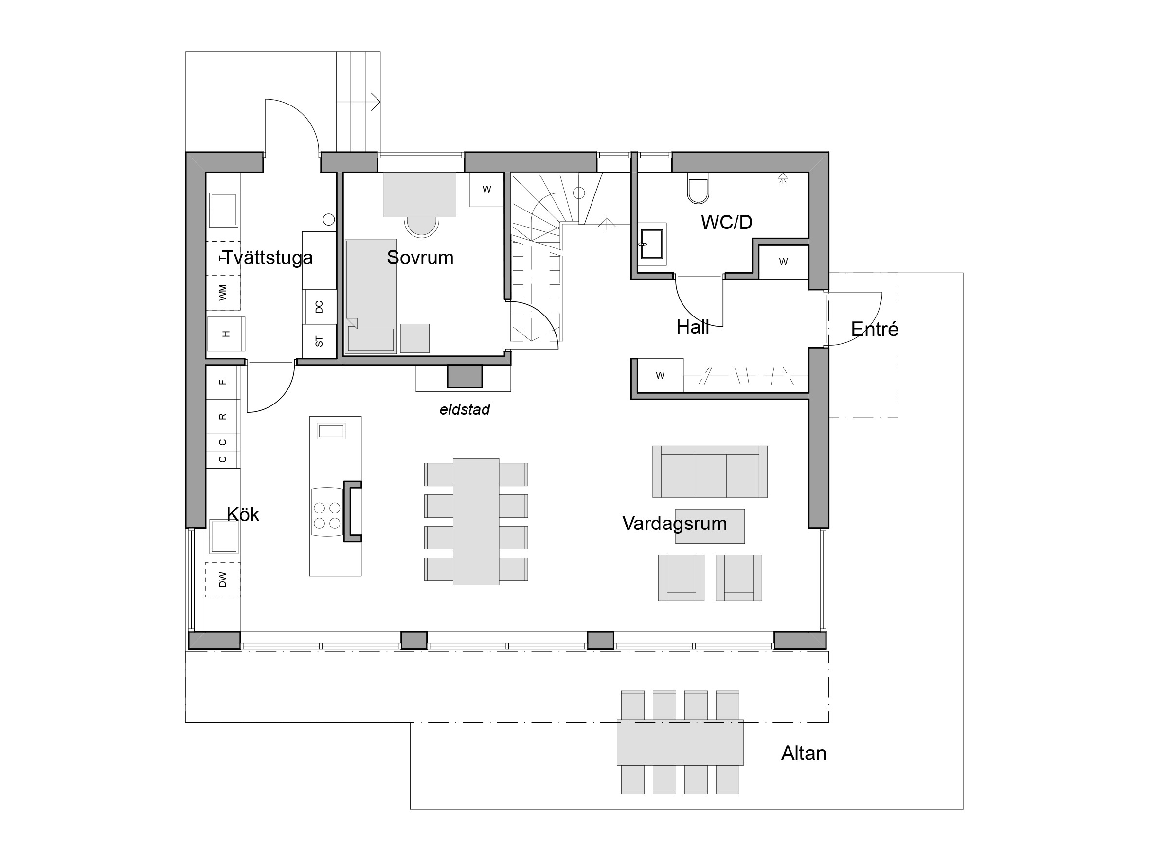
Entréplan
Plan 2
Fasad
<< < >
Villa T1
Beställare: PrivatByggår: 2015Byggare: WWL
En villa med kvadratiskt fotavtryck inpassad på en kuperad tomt. Stora fönster på övre plan med utsikt över landskapet. På entréplan, gemensamma ytor och en upphöjd terrass.